Urbanisme

Accueil > Mairie > Urbanisme
Icone mairie

PLUIH

Les règles qui s’appliquent à votre terrain sont accessibles dans le PLU (Plan local d’urbanisme) et prochainement dans le PLUi (Plan local d’urbanisme interncommunal).

–  Le PLU Broons, est en vigeur.

– Le PLUi Dinan Agglomération, est en cours d’élaboration. Retrouvez la présentation, les incidences, la composition et toutes autres informations sur le PLUi, ici.

Le cadastre est disponible via le SIG (Système d’Information Géographique) de Dinan Agglomération : Accès au cadastre

Les autorisations d'urbanisme

Logements à loyers modérés

Côtes d’Armor Habitat s’attache à répondre au mieux à l’expression des besoins en logements locatifs sociaux par la réalisation de logements, tant pavillonnaires qu’intermédiaires ou collectifs, avec des montants de loyers et charges maîtrisés.

Retrouvez toutes les informations et documents à télécharger : ici  

Contacts : 

Côtes d’Armor Habitat
Rue des Lys BP55 22440 PLOUFRAGAN
Tèl : 02 96 94 12 41
Site internet : http://www.cotesdarmorhabitat.com
Ouvert au public de 8h30 à 12h30 et de 13h30 à 17h

Aides à l'amélioration de l'habitat

Des aides pour rénover sa résidence principale

Avec le soutien de l’Agence Nationale de l’Amélioration de l’Habitat (ANAH), Dinan Agglomération a mis en place des aides financières pour aider les propriétaires (occupants et bailleurs) à rénover leurs résidences principales.

Ces aides peuvent aller jusqu’à 80 % du montant de travaux hors taxes.

Quels sont les travaux éligibles ?

  • pour le maintien à domicile des personnes âgées ou en situation de handicap (installation d’une douche en place et lieu d’une baignoire, installation de monte-escalier, etc.) ;
  • pour réaliser des économies d’énergie (changement de chaudière, isolation des combles, changement de menuiseries, etc.) ;
  • pour remédier à une dégradation plus lourde du logement.

Ces aides sont soumises à des plafonds de ressources, revus tous les ans.

Lotissements en cours

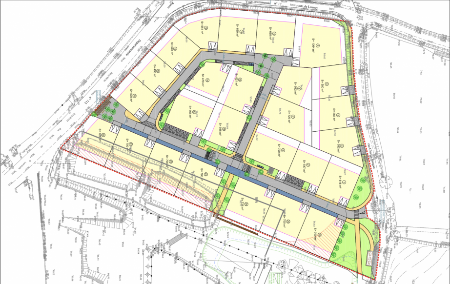
Lotissement de l’artillerie

Un nouveau lotissement voit le jour sur la commune, avec 24 lots viabilisés. Il se situe en bas de la rue de la barrière, à proximité immédiate du nouveau collège de Broons.

La commercialisation est commencée.

Aujourd’hui, les lots disponibles (15 sur 24) sont : 

 –  le lot n°1 d’une superficie de 316 m²

 – le lot n°2 d’une superficie de 310 m²

 – le lot n°3 d’une superficie de 310 m²

 – le lot n°4 d’une superficie de 310 m²

 – le lot n°5 d’une superficie de 350 m²

 – le lot n°6 d’une superficie de 353 m²

 – le lot n°7 d’une superficie de 388 m²

 – le lot n°8 d’une superficie de 337 m²

 – le lot n°9 d’une superficie de 336 m²

 – le lot n°10 d’une superficie de 426 m²

 – le lot n°11 d’une superficie de 413 m²

 – le lot n°17 d’une superficie de 428 m²

 – le lot n°19 d’une superficie de 500 m²

 – le lot n°20 d’une superficie de 464 m²

 – le lot n°23 d’une superficie de 471 m²

 

 N’hésitez pas à contacter la Mairie de Broons afin d’obtenir plus d’informations. 

Lotissement de Bellevue

Le lotissement de Bellevue, vu le jour en 2014 avec 26 lots viabilisés. Aujourd’hui, il ne reste qu’1 lot disponible :

 – le lot n°5 d’une superficie de 500 m²

 

N’hésitez pas à contacter la Mairie de Broons afin d’obtenir plus d’informations.

Retrouvez aussi

À lire dans cette rubrique